
Ansprechpartner & Service
Allgemeine Kontakte
Der Club an der Alster e.V.
Hallerstraße 91,
20149 Hamburg
Marketing, Kommunikation & Digitalisierung
Tel.: (040) 41 42 41 3-24
Nico Döbelin
Mail: doebelin@dcada.de
Club – Sekretariat & Geschäftsführung
Tel.: (040) 41 42 41 3-0
Montag & Mittwoch:
09:00 – 16:00 Uhr
Dienstag, Donnerstag & Freitag:
09:00 – 15:00 Uhr
Nina Gebers
Mail: info@dcada.de
Clubzeitung
Mail: clubzeitung@dcada.de
Datenschutzbeauftragter
Hendrik Sievers
Mail: datenschutz@dcada.de
Tel.: (040) 30 10 07 0
Weitere Ansprechpartner
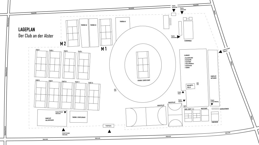
Lageplan & Anfahrt
Lageplan der Anlage am Rothenbaum
